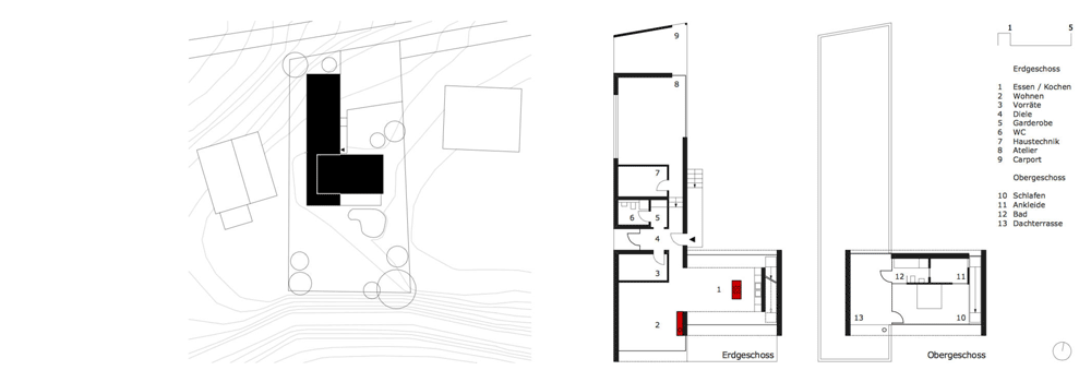
Holzhaus Grundriss